Get new listings emailed daily! SIGN UP LOGIN
London, Corbin, Lexington, Richmond, and Berea Real Estate and Homes For Sale
Refine Search

1301 Rabbit Warren Flat, Lexington, KY 40509

$799,000
  • 1301 Rabbit Warren Flat, Lexington, KY 40509 Main Photo

50 Total Photos [Click to View All]

Active
BEDS4 BATHS3 full SQUARE FEET3,184 MLS#26000030
STATUS PROPERTY TYPEResidential - Single Family SUBDIVISIONThe Home Place SCHOOLFayette County - 1

Property Description

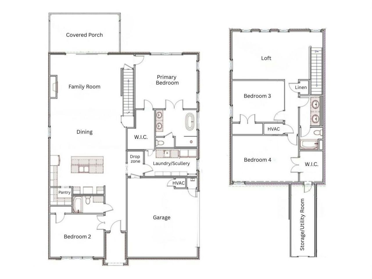
Modern Luxury on a Quiet Corner Lot Set on a private corner lot in a quiet cul-de-sac, this 3,184 sq ft new-construction home offers luxury, custom-curated finishes throughout, including designer millwork and detailed trim. Both levels feature 9' ceilings, 8' doors, wide-plank hardwoods, and a light-filled open layout. The main-floor primary suite features a spa-inspired bath with a curbless tiled shower and freestanding tub. An additional main-level bedroom and full bath provide flexible space for guests or multigenerational living. The chef's kitchen features ceiling-height all-wood cabinetry, granite surfaces, a 9' island, stainless smart appliances, under-cabinet lighting, and a walk-in pantry. An expanded scullery-style laundry room doubles as a butler's pantry, prep space or organizational hub with a sink, extensive cabinetry and premium finishes???an exceptional and rarely seen feature. A conveniently located mudroom/drop zone adds organization to everyday living. The living room is highlighted by a custom fireplace wall and a 12' all glass door opening to a covered patio with wood-paneled ceiling, and serene views. Upstairs, a spacious loft offers flexible living alongside two bedrooms and a full bath. Additional highlights include hardwood stairs, upgraded lighting and hardware, tankless gas water heater, EV hookup, and smart garage door with camera. All this, with the convenience of the Brighton Trail, plus quick access to Hamburg shopping and I-75/I-64. A beautifully executed home where thoughtful design meets everyday luxury. Home is under construction! Pictures reflect a previously built home by Portrait Homes. Final design and finishes may vary. Other lots available.

1301 Rabbit Warren Flat | MLS# 26000030

This single family home located at 1301 Rabbit Warren Flat, Lexington, KY 40509 is currently listed for sale with an asking price of $799,000. This property has 4 bedrooms and 3 full baths with 3184 sq. ft. Rabbit Warren Flat is located in the The Home Place subdivision within the Fayette County - 1 school district. Search The Home Place real estate on www.salliedavidson.com today.

Property Features

Property Type: Residential - Single Family
Cooling: Electric, Heat Pump, Zoned
Fireplaces: 1
Fuel Type: Electric
Garage: 2
Heating: Electric, Heat Pump, Zoned
Home Style: Craftsman, Ranch
Lot Size: 0.20 Acres
Roof Type: Dimensional Style, Shingle
Stories: 2.0

Amenities

Breakfast Bar
Entrance Foyer
Eat-in Kitchen
In-Law Floorplan
Primary First Floor
Walk-In Closet(s)
Ceiling Fan(s)
Soaking Tub

Feature Descriptions

Appliance Features: Disposal, Dishwasher, Gas Range, Microwave, Refrigerator, Oven, Self Cleaning Oven, Vented Exhaust Fan
Attic: Partially Finished
Community Features: Park
Days on Site: 85
Exterior: Brick Veneer, HardiPlank Type, Stone, Vinyl Siding
Fireplace Features: Gas Log, Great Room, Ventless
Flooring: Carpet, Hardwood, Tile
HOA: Yes
Laundry: Electric Dryer Hookup, Main Level, Washer Hookup, Lower Level
Laundry Features: Electric Dryer Hookup, Main Level, Washer Hookup, Lower Level
Lot Dimensions: 0.196 acre(s)
Lot Features: Wooded, Many Trees
Parcel #: 38306980
Parking Notes: Attached Garage, Driveway, Garage Door Opener, Off Street, Garage Faces Front
Rooms Total: 18
Structure Type: House
Utilities: Electricity Connected, Natural Gas Connected, Sewer Connected, Water Connected
Window Features: Insulated Windows
Wooded: Yes

Local Schools

High School: Frederick Douglass
Middle School: Edythe J. Hayes
Elementary School: Garrett Morgan
School District: Fayette County - 1

Listed By / Shown By

Listed By

Agency Name: Napier Realtors

Shown By

Agency Title: SALLIE DAVIDSON, REALTORS
Agency Phone: 606-877-3000

IDX logo

Estimate Your Payment

Estimated Payment

$ 3,103.34 per month $2,870.29 Principal & Interest $0.00 Property Tax (data not provided by mls) $233.04 Homeowner's Insurance

Change Payment Information

%
years/fixed
yearly
yearly (est.)
(Payments are an estimate and may vary by lender)

Login to My Homefinder

Pixel