Get new listings emailed daily! SIGN UP LOGIN
London, Corbin, Lexington, Richmond, and Berea Real Estate and Homes For Sale
Refine Search

316 Circle Point Drive , Richmond, KY 40475

$629,900
  • 316 Circle Point Drive , Richmond, KY 40475 Main Photo

67 Total Photos [Click to View All]

Active
BEDS5 BATHS3 full SQUARE FEET2,930 MLS#25508051
STATUS PROPERTY TYPEResidential - Single Family SUBDIVISIONShiloh Cove SCHOOLMadison County - 8

Property Description

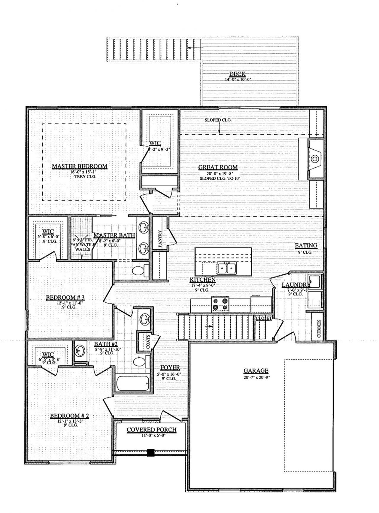
LOT 48 - The Yorkshire Plan is one of our best ranch home plans! This trendy floor plan features a wide open concept with the kitchen, dining and great room. Also features a gas logs fireplace with built ins around. Both bathrooms on the main level have double sink, raised height vanities. The primary ensuite is luxurious featuring a trey ceiling, walk in closet, tiled walk in shower (with fiberglass pan) and glass door. Everyone enjoys the functionality of the secondary bathroom with its pocket door and dual access entry points. There is also a laundry/mud room located off the garage with quick access to the kitchen for convenience! This home features a FINISHED walk out basement that adds an additional 2 bedrooms (5 in total!), 3rd full bathroom, spacious and cozy family room, utility garage space and a convenient and functional unfinished storage space. Purchase with confidence and discover the distinctive quality of Payne Homes. With over 30 years of building experience in Madison County, Payne Homes are renowned for their award-winning functional floor plans, premium STANDARD features and meticulous attention to energy-efficient details. Shiloh Cove is located right off I-75 between exits 97 & 95. HOA fee is 300/year. There are street lights & side walks.

316 Circle Point Drive | MLS# 25508051

This single family home located at 316 Circle Point Drive , Richmond, KY 40475 is currently listed for sale with an asking price of $629,900. This property has 5 bedrooms and 3 full baths with 2930 sq. ft. Circle Point Drive is located in the Shiloh Cove subdivision within the Madison County - 8 school district. Search Shiloh Cove real estate on www.salliedavidson.com today.

Property Features

Property Type: Residential - Single Family
Basement: Yes
Cooling: Heat Pump
Fireplaces: 1
Garage: 2
Heating: Heat Pump
Home Style: Craftsman, Ranch
Lot Size: 0.76 Acres
Roof Type: Dimensional Style
Stories: 1.0

Amenities

Breakfast Bar
Entrance Foyer
Walk-In Closet(s)
Ceiling Fan(s)

Feature Descriptions

Appliance Features: Dishwasher, Microwave, Refrigerator, Range
Attic: Access Only
Basement Features: Bath/Stubbed, Finished, Full, Walk-Out Access
Days on Site: 120
Exterior: Brick Veneer, Stone, Vinyl Siding
Fireplace Features: Gas Log, Great Room, Ventless
Flooring: Carpet, Hardwood, Tile
HOA: Yes
HOA Fee Includes: Maintenance Grounds
Laundry: Electric Dryer Hookup, Main Level, Washer Hookup
Laundry Features: Electric Dryer Hookup, Main Level, Washer Hookup
Lot Dimensions: 0.760 acre(s)
Lot Features: Landscaped, Few Trees
Parcel #: 0038-0046-0048
Parking Notes: Attached Garage, Driveway, Garage Door Opener, Off Street, Garage Faces Side
Rooms Total: 14
Structure Type: House
Utilities: Cable Available, Electricity Connected, Natural Gas Available, Sewer Connected, Underground Utilities, Water Connected
Window Features: Insulated Windows, Screens

Local Schools

High School: Madison Central
Middle School: Michael Caudill
Elementary School: Boonesborough
School District: Madison County - 8

Listed By / Shown By

Listed By

Agency Name: Berkshire Hathaway HomeServices Foster Realtors

Shown By

Agency Title: SALLIE DAVIDSON, REALTORS
Agency Phone: 606-877-3000

IDX logo

Estimate Your Payment

Estimated Payment

$ 2,446.55 per month $2,262.83 Principal & Interest $0.00 Property Tax (data not provided by mls) $183.72 Homeowner's Insurance

Change Payment Information

%
years/fixed
yearly
yearly (est.)
(Payments are an estimate and may vary by lender)

Login to My Homefinder

Pixel